Реализуем цилиндрические двухступенчатые редукторы РМ 750 в горизонтальном исполнении по ценам завода-изготовителя. Агрегаты этой серии относятся к универсальному типу и повсеместно используются для комплектации приводов грузоподъемных механизмов, горнодобывающей техники, другого промышленного оборудования.
Технические характеристики редукторов РМ 750
- Частота вращения входного вала до 1500 об/мин.
- Межосевое расстояние 750 мм.
- КПД 0,98.
- Номинальный крутящий момент на тихоходном валу 7500 Нм.
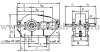
Изделия этого класса представляют собой две косозубые цилиндрические передачи, установленные в чугунном разъемном корпусе. Агрегат комплектуется тремя типами валов:
- Цилиндрический с присоединением муфтами МЗ, МУВП.
- Конический используется для посадки шкивов.
- В виде зубчатой муфты позволяет повысить радиально-консольные нагрузки.
Редуктор РМ 750 поставляется с различными передаточными числами (диапазон: от 8 до 50). Доступны варианты сборки с коллинеарным и неколлинеарным расположением валов. Устройство способно работать с постоянной или переменной нагрузкой в одном или реверсивном направлении. Длительность работы агрегата неограниченна.
Наши цилиндрические редукторы отличаются высоким КПД, низким тепловыделением и возможностью вращения в любую сторону. Отличительная особенность этой серии возможность работы в запыленных, неагрессивных средах. Габаритные и присоединительные размеры изделий указаны на чертежах.
Мы предлагаем купить любую модель с оперативной доставкой в любой город России удобным для вас способом. Для помощи в подборе оборудования звоните по указанным телефонам.
Оплата заказа для юридических и физических лиц.
1. Оплата по Счету, Счет-договору (для юридических лиц и ИП с расчетным счетом).
1.1. После согласования заказа наш менеджер отправляет на email клиента Счет и Спецификацию или Счет-договор (в зависимости от условий сотрудничества).
1.2. При доставке транспортной компанией (ТК) Продавца «до дверей», ее стоимость выделяется отдельной строкой в Счете/Счет-договоре.
1.3. Доставка «до терминала ТК» будет бесплатной.
1.4. Срок действия Счет-договора 7 календарных дней. По их окончании программа автоматически расформировывает Счет-договор – бронь снимается.
2. Оплата товара.
2.1. Оплата принимается по безналичному расчету путем перевода денежных средств с р/с Покупателя на р/с Продавца.
2.2. При оплате наличными вы дожидаетесь курьера и передаёте ему сумму за товар в рублях. Покупатель подписывает документы, вносит денежные средства и получает чек.
2.3. Датой оплаты считается дата зачисления денежных средств на р/с Продавца.
Подробнее об условиях оплаты читайте в разделе Условия оплаты.
Доставка производится по России и странам СНГ. Предлагаем несколько вариантов отгрузки товара.
1. Доставка транспортной компанией (ТК) или курьерской службой Покупателя.
1.1. Мы сотрудничаем с транспортными компаниями:
- Транспортная компания КИТ.
- Деловые линии.
- ПЭК.
Также доставка может быть осуществлена:
- транспортными компаниями;
- авиа- и ж/д транспортом;
- контейнерными перевозками;
- экспресс-почтой, либо курьерской доставкой;
До транспортной компании доставляем бесплатно.
1.2. Покупатель может самостоятельно заказать услуги ТК или курьера и забрать заказ по адресу г. Екатеринбург, ул. Артинская, 6а.
2. Самовывоз со склада Продавца.
Если товар есть в наличии на складе, то заказ можно забрать на следующий день после получения оплаты или в день оплаты при наличии платежки с отметкой банка о проведении платежа. Если товар «под заказ», приезжать за ним можно после уведомления нашего менеджера.
Важно! Перед приездом или отправкой курьера необходимо связаться с менеджером и уточнить готовность товара к отгрузке.
Услуга доступна по адресу г. Екатеринбург, ул. Артинская, 6а, офис 2, с 9:00 до 17:00.
3. Доставка заказа ТК Продавца «до дверей» Покупателя.
Подробнее об условиях доставки читайте в разделе Условия доставки.
