Цилиндрический Редуктор ЦДНД 200 надежный и обладает особым качеством. Он служит долго и надежно. В основном, он используется для работы и преобразованиях больших мощностей. Область применения самая разнообразная. Это могут быть Конвейеры, элеваторы, птицефабрики, упаковочное оборудование и т.д. Редуктор ЦДНД 200 имеет отличные характеристики и предназначен для долговременной работы. Поэтому он надежен и служит долго. Самые положительные отзывы. Поэтому он и заслуживает называться лучшим. Эксплуатируется хорошо и имеет хороший спрос среди потребителей данной продукции.
Основные технические характеристики
|
|
ЦДНД-200 |
ЦДНД-315 |
ЦДНД-400 |
|---|---|---|---|
|
Передаточное число |
12,5, 16, 20, 25, 31,5, 40 |
||
|
Номинальный |
2,1х103 |
7х103 |
1,4х104 |
|
Габаритные размеры, мм: |
|||
|
длина |
685 |
1000 |
1265 |
|
ширина |
472 |
632 |
780 |
|
высота |
412 |
635 |
820 |
|
Масса, кг, не более: |
152 |
424 |
865 |
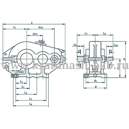
Габаритные и присоединительные размеры
Присоединительные размеры валов
|
Типоразмер редуктора |
L |
L1 |
L2 |
L3 |
L4 | L5 | L6 |
L7 |
L8 |
L9 |
L10 |
B |
|---|---|---|---|---|---|---|---|---|---|---|---|---|
|
Редуктор цилиндрический ЦДНД-200 |
685 |
245 |
60 |
- |
- |
310 |
440 |
252 |
220 |
105 |
82 |
245 |
|
Редуктор цилиндрический ЦДНД-315 |
1000 |
345 |
110 |
- |
240 |
480 |
630 |
365 |
267 |
165 |
82 |
345 |
|
Редуктор цилиндрический ЦДНД-400 |
1265 |
445 |
155 |
215 |
430 |
645 |
820 |
450 |
330 |
200 |
105 |
425 |
|
Типоразмер редуктора |
B1 |
H |
H1 |
d |
d1 |
d2 |
t |
t1 |
b |
b1 |
n |
|---|---|---|---|---|---|---|---|---|---|---|---|
|
Редуктор цилиндрический ЦДНД-200 |
200 |
412 |
212 |
22 |
60 |
40 |
43 |
64 |
12 |
18 |
4 |
|
Редуктор цилиндрический ЦДНД-315 |
280 |
635 |
335 |
26 |
110 |
50 |
53,5 |
116 |
14 |
28 |
6 |
|
Редуктор цилиндрический ЦДНД-400 |
340 |
820 |
425 |
33 |
140 |
65 |
69 |
148 |
18 |
36 |
8 |
Оплата заказа для юридических и физических лиц.
1. Оплата по Счету, Счет-договору (для юридических лиц и ИП с расчетным счетом).
1.1. После согласования заказа наш менеджер отправляет на email клиента Счет и Спецификацию или Счет-договор (в зависимости от условий сотрудничества).
1.2. При доставке транспортной компанией (ТК) Продавца «до дверей», ее стоимость выделяется отдельной строкой в Счете/Счет-договоре.
1.3. Доставка «до терминала ТК» будет бесплатной.
1.4. Срок действия Счет-договора 7 календарных дней. По их окончании программа автоматически расформировывает Счет-договор – бронь снимается.
2. Оплата товара.
2.1. Оплата принимается по безналичному расчету путем перевода денежных средств с р/с Покупателя на р/с Продавца.
2.2. При оплате наличными вы дожидаетесь курьера и передаёте ему сумму за товар в рублях. Покупатель подписывает документы, вносит денежные средства и получает чек.
2.3. Датой оплаты считается дата зачисления денежных средств на р/с Продавца.
Подробнее об условиях оплаты читайте в разделе Условия оплаты.
Доставка производится по России и странам СНГ. Предлагаем несколько вариантов отгрузки товара.
1. Доставка транспортной компанией (ТК) или курьерской службой Покупателя.
1.1. Мы сотрудничаем с транспортными компаниями:
- Транспортная компания КИТ.
- Деловые линии.
- ПЭК.
Также доставка может быть осуществлена:
- транспортными компаниями;
- авиа- и ж/д транспортом;
- контейнерными перевозками;
- экспресс-почтой, либо курьерской доставкой;
До транспортной компании доставляем бесплатно.
1.2. Покупатель может самостоятельно заказать услуги ТК или курьера и забрать заказ по адресу г. Екатеринбург, ул. Артинская, 6а.
2. Самовывоз со склада Продавца.
Если товар есть в наличии на складе, то заказ можно забрать на следующий день после получения оплаты или в день оплаты при наличии платежки с отметкой банка о проведении платежа. Если товар «под заказ», приезжать за ним можно после уведомления нашего менеджера.
Важно! Перед приездом или отправкой курьера необходимо связаться с менеджером и уточнить готовность товара к отгрузке.
Услуга доступна по адресу г. Екатеринбург, ул. Артинская, 6а, офис 2, с 9:00 до 17:00.
3. Доставка заказа ТК Продавца «до дверей» Покупателя.
Подробнее об условиях доставки читайте в разделе Условия доставки.
